Отделка потолка плиткой – технология, популярная в силу невысокой стоимости большинства видов пенопластовой облицовки и возможности исполнения своими руками. Однако лишние затраты не желательны даже при дешевизне материала, поэтому количество закупаемой плитки должно соответствовать фактической потребности – её должно хватить с учётом нюансов укладки, причём, с разумным запасом для точечного ремонта покрытия при необходимости.


Рассмотрим, как рассчитать количество потолочной плитки в наиболее распространённых ситуациях.
С чего начать расчёт
Конечно же, начинать надо с выполнения замеров длины и ширины потолка – основных критериев расхода плитки.
В помещениях наиболее распространённой формы – прямоугольных нужно в любых доступных местах замерить рулеткой кратчайшие расстояния между противоположными стенами.
Точнее всего получится сделать эти замеры под потолком, прикладывая концы рулетки вплотную к стене, так как перегородки могут иметь отклонения от вертикали. Для этого при выполнении измерений нужно стараться, чтобы рулетка быть перпендикулярна стенам, к которым прикладывается, иначе замер окажется завышенным, а это даст и увеличение расчётной площади потолка.


Цена деления строительной рулетки составляет 1 мм. Замеры следует выполнять в метрах с точностью до трёх знаков после запятой (мм), и округлять их вверх до второго знака – сантиметра.
Например, измерения потолка показали:
- ширину 3,544 м (3 метра, 54 сантиметра и 4 миллиметра) – эту величину округляют до 3,55 м (3 м и 55 см);
- длину 6,247 м (3 м 24 см и 7 мм) – округляют до 6,25 м (6 м и 25 см).
Если углы в комнате имеют отклонения от 90 град., а это бывает часто, расстояние между противоположными стенами в разных местах будет различаться. В таких ситуациях делают несколько замеров – от угла к углу и пару промежуточных, после чего выбирают максимальное значение.
Расчёт площади потолка
Выполнив замеры, приступают к определению площади потолка. Для этого используют формулы вычисления площадей простейших геометрических фигур.
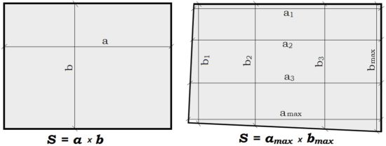
В помещении прямоугольной формы площадь потолка (S) определяют перемножением его длины (a) на ширину (b) в метрах, после чего полученный в м кв. результат округляют вверх до целых единиц.
Например:
S=a х b (или a max х b max) = 6,247 м х 3,544 м = 22,1875 м2 ≈ 23,0 м2


Бывает, что помещение имеет более сложную, чем прямоугольник, конфигурацию – например, углов больше, чем 4. В таких случаях потолок разбивают линиями на простейшие составляющие (прямоугольники, треугольники), рассчитывают площадь каждой из них по геометрическим формулам и суммируют значения.


Если одна из стен овальной формы, или же потолок в помещении – многоуровневый, и плиткой планируется облицевать уровень с овальным контуром, то поверхность также разбивают на простейшие фигуры, и рассчитывают их площади по формулам, заменяя в них длины дуг малого радиуса кривизны отрезками, а затем округляя результат вверх.


Например, чтобы рассчитать площадь фигуры BFC, можно найти площадь одноимённого треугольника, заменив в формуле длину дуги ВС отрезком.
Что влияет на расход плитки
Кроме площади потолка, на расход плитки влияют следующие факторы:
- 1. Расположение рядов облицовки относительно стен
Ряды отделки можно располагать параллельно стенам («прямой» или «со смещением» способы) или по диагонали. В первом случае отходы материала при подгонке стыков со стенами могут составлять до 10% от общего количества, во втором – до 15%.


2. Кратность размеров потолка размерам плитки
Если в длину или/и ширину потолка умещается целое число листов, то отходов материала на подгонку не будет. Например, на потолок размером 3х4 м плитки 50х50 см уйдёт в длину ровно 8 листов, а в ширину – ровно 6.
3. Компоновка листов на потолке
Имеется в виду зависимость расхода плитки от того, с какого места потолочной поверхности стартуют – от люстры, дальней стены или угла, геометрического центра потолка, потому что это определяет ситуацию по стыкам листов со стенами.
4. Наличие ниш (многоуровневые потолки)
В таких ситуациях отдельно определяют площадь каждого яруса, округляют полученные значения вверх, и суммируют результаты.


5. Качество плитки и квалификация исполнителя
Материал при покупке необходимо проверять, а в договоре со специалистом должен быть пункт об ответственности за порчу материала.
Определение потребности в плитке
Существует несколько способов рассчитать, сколько на потолок понадобится пенопластовой облицовки. Различаются они величиной погрешности, поэтому способ определения потребности в такой отделке выбирают в зависимости от цены материала.


Рассмотрим, как определяют расход дешёвой и более дорогостоящей (ламинированной) плитки.
Расчёт количества бюджетного материала
Проще всего посчитать потребность в плитке с помощью онлайн-калькуляторов. В нужные поля вносят габариты помещения, размеры плитки, и в один клик получают расход.
Однако, при этом следует учитывать, что выданное калькулятором количество соответствует отделке одноуровневого потолка прямым способом — когда ряды листов располагают параллельно стенам. Другие факторы, влияющие на потребность в материале, такие калькуляторы не учитывают.


Если купленная плитка – материал бюджетного сегмента, её расход определяют следующим образом:
- при укладке листов «прямым» или «со смещением» способами к площади потолка добавляют 10%;
- диагональное расположение листов требует добавки 15%.
Например, площадь потолка составляет 17 м2 – это 68 листов облицовки размером 50х50 см. При прямых способах укладки понадобится 68 х 1,1=74,8 шт. плитки, то есть 75 листов, а при диагональном монтаже – 68 х 1,15=78,2 шт. ≈79 плиток.
Такое количество материала позволит скомпоновать листы на потолке оптимально, выполнив подрезку элементов по стыку со стенами на равную величину.
Определение потребности в дорогостоящей потолочной плитке
При использовании дорогой потолочной облицовки стремятся купить её с минимально необходимым запасом, поэтому для расчёта расхода применяют способы с меньшими погрешностями.


Рассмотрим такой подсчёт на простом примере – когда на потолке нет люстры, и стартовать отделку можно без привязки к её расположению.
Имеем:
- потолок длиной и шириной 6,25 м и 3,55 м соответственно;
- плитку размерами 0,5х0,5 м.
Требуется: рассчитать количество листов для отделки имеющейся площади.
Определяем, сколько целых плиток поместится в длине и ширине потолка:
- 6,25 м : 0,5 м = 12,5 шт. – это 12 полных листов (12 поперечных рядов);
3,55 м : 0,5 м = 7,1 шт. – это 7 целых листов (7 продольных рядов).
Значит, на потолок уйдёт 7х12=84 целых листа. К этому количеству необходимо прибавить материал для заполнения просветов по периметру вдоль стен – подрезанную плитку, то есть, 7 половинок и 12 полос шириной 5 см. Половинки можно заменить полосами шириной по 12 см (с учётом пристенного зазора) в начале и конце каждого ряда. Что же касается узких элементов по 5 см, то просвет после их идентичного распределения будет шириной в 2 см, и он легко скроется потолочным плинтусом.


Какое количество материала уйдёт для заполнения 12-сантиметровых просветов, зависит от оформления лицевой части плитки – если она шовная, то из одного листа получится 2 полосы, которые нужно будет отрезать от его противоположных кромок. Значит, к 84 плиткам нужно будет прибавить ещё 7 изделий, итого получится 91 лист.
В более сложных случаях, когда на потолке есть люстра, и начинать облицовку нужно от неё, или потолок имеет сложную конфигурацию, на основании выполняют разметку компоновки плитки — для этого сначала присматривают облицовку в магазине, чтобы знать её размеры.
Заключение
Если при самостоятельном определении расхода плитки есть сомнения в правильности вычислений, узнать свою потребность можно в магазине, где она приобретается – назвать габариты комнаты и упомянуть нюансы. Если материал недорогой, то ошибка в расчётах не будет чувствительной.
Если же планируется использовать дорогостоящую облицовку, то класть её будет профессионал, и в этом случае вероятность неверного подсчёта невелика.